ISW臥式管道泵 臥式離心泵廠家 臥式管道離心泵全新報價   臥式管道增壓泵型號齊全
	ISWD臥式管道離心泵介紹
	ISWD臥式管道離心泵(臥式低轉速單級循環泵)ISWD臥式低轉速管道泵,其特點是電機轉速低,運行起來能更加平穩,聲音較輕。是我公司科技人員采用ISW型離心泵的改進而成,ISWD為低轉速管道泵,因此在選型時留意同樣的型號,參數較高轉速離心泵而言就不同。在一般管道泵的基礎上進行巧妙組合設計而成。同時根據使用溫度、介質等不同在ISG管道離心泵基礎上派出適用冷水、熱水、高溫、腐蝕性化工泵、油泵。單級循環泵產品具有高效節能、噪音低、性能可靠等優點。本公司生產ISWD型臥式管道離心泵質量保證,廠家直銷。
	ISWD臥式管道離心泵適用范圍
	1、ISW臥式管道離心泵供輸送清水及物理化學性質類似于清水的其它液體之用,適用于工業和城市給排水、高層建筑增壓送水、園林噴灌、消防增壓、遠距離輸送、暖通制冷循環、浴室等冷暖水循環增壓及設備配套,使用溫度t≤80℃。
	2、ISWR臥式熱水管道泵廣泛適用于:冶金、化工、紡織、造紙以及賓館飯店等鍋爐熱水增壓循環輸送及城市采暖系統,iswr型使用溫度t≤120℃。
	3、ISWH臥式不銹鋼管道離心泵,供輸送不含固體顆粒,具有腐蝕性、粘度類似于水的液體,適用于石油、化工、冶金、電力、造紙、食品制藥和合成纖維等部門,使用溫度為-20℃~+120℃。
	4、ISWB防爆臥式管道離心泵供輸送汽油、煤油、柴油等油類產品或易燃、易爆液體,被輸送介質溫度為-20~ +120℃。
	ISWD臥式管道離心泵型號意義
	
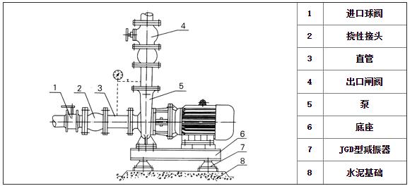
	ISWD低轉速臥式管道泵安裝說明
	    1、安裝前應檢查水泵和電機有無損傷,泵流道內有無影響水泵運行的硬質物體(如石塊、鐵粒等),以免水泵運行時損壞葉輪和泵體。   
	    2、安裝時管路重量不應加在水泵上,應有各自的支承體,以免泵變形影響運行性能和壽命。
	    3、泵與電機是整體結構,安裝時無需找正,十分方便。
	    4、當輸送熱水液體時,為了不使泵承受管路的熱變形,泵座的底腳螺栓可以不固定,當管路系統在熱脹冷縮時,使泵能與管路一起移動。
	    5、泵體兩端法蘭規格均按1.6 M Pa標準確定,所以配備管路時應規格相同。
	    6、為了不使雜質進入泵內而堵塞流道影響性能,應在泵進口前面安裝比吸入管截面積大3-4倍的過濾器。
	    7、排出管路如裝逆止閥應裝在閘閥的外面。
	    8、泵用于有吸程場合,應裝有底閥,并且進出口管路不應有過多彎道,同時不得有漏水、漏氣現象。
	    9、為了維修方便和使用安全,在泵的進、出口管路上各安裝一只調節閥及在泵出口附近安裝一只壓力表,以保證泵在額定范圍內運行,確保泵的正常運行和使用壽命。
	    1 0、安裝完畢后盤動泵軸,葉輪應無摩擦和卡死現象。
	ISWD低轉速臥式管道離心泵附件尺寸
	   隔振器安裝尺寸                    SD型隔振墊0.5基本尺寸
	
	
		ISWD低轉速臥式管道離心泵安裝方式
	
		
			1.剛性安裝
		
		
			          11KW以上時,隔振器與基礎可鉆膨脹螺栓相聯。說明:7.5KW以下水泵可配隔振墊直接安裝在基礎上。
		
			2.柔性安裝
		
	 
 
	
	
		 ISW、ISWR、ISWH、ISWB型臥式管道離心泵性能參數
	
		(低轉速1450、970r/min):
	
		
			
				| 
					 
						型號 
				 | 
				
					 
						流量 
					
						(m3/h) 
				 | 
				
					 
						揚程 
						(m) 
				 | 
				
					 
						電機功率 
					
						(kw) 
				 | 
				
					 
						轉速 
						(r/min) 
				 | 
			
			
				| 
					40-125(I) | 
				
					 
						6.3 
				 | 
				
					 
						5 
				 | 
				
					 
						0.55 
				 | 
				
					 
						1450 
				 | 
			
			
				| 
					40-160(I) | 
				
					 
						6.3 
				 | 
				
					 
						8 
				 | 
				
					 
						0.55 
				 | 
				
					 
						1450 
				 | 
			
			
				| 
					40-160(I)A | 
				
					 
						5.5 
				 | 
				
					 
						6 
				 | 
				
					 
						0.55 
				 | 
				
					 
						1450 
				 | 
			
			
				| 
					40-200(I) | 
				
					 
						6.3 
				 | 
				
					 
						12.5 
				 | 
				
					 
						0.75 
				 | 
				
					 
						1450 
				 | 
			
			
				| 
					40-200(I)A | 
				
					 
						5.8 
				 | 
				
					 
						11 
				 | 
				
					 
						0.55 
				 | 
				
					 
						1450 
				 | 
			
			
				| 
					40-250(I) | 
				
					 
						6.3 
				 | 
				
					 
						20 
				 | 
				
					 
						1.5 
				 | 
				
					 
						1450 
				 | 
			
			
				| 
					40-250(I)A | 
				
					 
						5.8 
				 | 
				
					 
						17 
				 | 
				
					 
						1.1 
				 | 
				
					 
						1450 
				 | 
			
			
				| 
					50-125 | 
				
					 
						6.3 
				 | 
				
					 
						5 
				 | 
				
					 
						0.55 
				 | 
				
					 
						1450 
				 | 
			
			
				| 
					50-160 | 
				
					 
						6.3 
				 | 
				
					 
						8 
				 | 
				
					 
						0.55 
				 | 
				
					 
						1450 
				 | 
			
			
				| 
					50-160A | 
				
					 
						5.5 
				 | 
				
					 
						6 
				 | 
				
					 
						0.55 
				 | 
				
					 
						1450 
				 | 
			
			
				| 
					50-200 | 
				
					 
						6.3 
				 | 
				
					 
						12.5 
				 | 
				
					 
						0.75 
				 | 
				
					 
						1450 
				 | 
			
			
				| 
					50-200A | 
				
					 
						5.8 
				 | 
				
					 
						11 
				 | 
				
					 
						0.55 
				 | 
				
					 
						1450 
				 | 
			
			
				| 
					50-250 | 
				
					 
						6.3 
				 | 
				
					 
						20 
				 | 
				
					 
						1.5 
				 | 
				
					 
						1450 
				 | 
			
			
				| 
					50-250A | 
				
					 
						5.8 
				 | 
				
					 
						17 
				 | 
				
					 
						1.1 
				 | 
				
					 
						1450 
				 | 
			
			
				| 
					50-125(I) | 
				
					 
						12.5 
				 | 
				
					 
						5 
				 | 
				
					 
						0.55 
				 | 
				
					 
						1450 
				 | 
			
			
				| 
					50-160(I) | 
				
					 
						12.5 
				 | 
				
					 
						8 
				 | 
				
					 
						0.75 
				 | 
				
					 
						1450 
				 | 
			
			
				| 
					50-160(I)A | 
				
					 
						11 
				 | 
				
					 
						6 
				 | 
				
					 
						0.55 
				 | 
				
					 
						1450 
				 | 
			
			
				| 
					50-200(I) | 
				
					 
						12.5 
				 | 
				
					 
						12.5 
				 | 
				
					 
						1.1 
				 | 
				
					 
						1450 
				 | 
			
			
				| 
					50-200(I)A | 
				
					 
						11.2 
				 | 
				
					 
						10 
				 | 
				
					 
						0.75 
				 | 
				
					 
						1450 
				 | 
			
			
				| 
					50-250(I) | 
				
					 
						12.5 
				 | 
				
					 
						20 
				 | 
				
					 
						2.2 
				 | 
				
					 
						1450 
				 | 
			
			
				| 
					50-250(I)A | 
				
					 
						11.7 
				 | 
				
					 
						17.5 
				 | 
				
					 
						1.5 
				 | 
				
					 
						1450 
				 | 
			
			
				| 
					50-250(I)B | 
				
					 
						10 
				 | 
				
					 
						13 
				 | 
				
					 
						1.1 
				 | 
				
					 
						1450 
				 | 
			
			
				| 
					50-315(I) | 
				
					 
						12.5 
				 | 
				
					 
						32 
				 | 
				
					 
						4 
				 | 
				
					 
						1450 
				 | 
			
			
				| 
					50-315(I)A | 
				
					 
						11.7 
				 | 
				
					 
						28 
				 | 
				
					 
						3 
				 | 
				
					 
						1450 
				 | 
			
			
				| 
					50-315(I)B | 
				
					 
						10 
				 | 
				
					 
						21 
				 | 
				
					 
						3 
				 | 
				
					 
						1450 
				 | 
			
			
				| 
					65-125 | 
				
					 
						12.5 
				 | 
				
					 
						5 
				 | 
				
					 
						0.55 
				 | 
				
					 
						1450 
				 | 
			
			
				| 
					65-160 | 
				
					 
						12.5 
				 | 
				
					 
						8 
				 | 
				
					 
						0.75 
				 | 
				
					 
						1450 
				 | 
			
			
				| 
					65-160A | 
				
					 
						11 
				 | 
				
					 
						6 
				 | 
				
					 
						0.55 
				 | 
				
					 
						1450 
				 | 
			
			
				| 
					65-200 | 
				
					 
						12.5 
				 | 
				
					 
						12.5 
				 | 
				
					 
						1.1 
				 | 
				
					 
						1450 
				 | 
			
			
				| 
					65-200A | 
				
					 
						11.2 
				 | 
				
					 
						10 
				 | 
				
					 
						0.75 
				 | 
				
					 
						1450 
				 | 
			
			
				| 
					65-250 | 
				
					 
						12.5 
				 | 
				
					 
						20 
				 | 
				
					 
						2.2 
				 | 
				
					 
						1450 
				 | 
			
			
				| 
					65-250A | 
				
					 
						11.7 
				 | 
				
					 
						17.5 
				 | 
				
					 
						1.5 
				 | 
				
					 
						1450 
				 | 
			
			
				| 
					65-250B | 
				
					 
						10 
				 | 
				
					 
						13 
				 | 
				
					 
						1.1 
				 | 
				
					 
						1450 
				 | 
			
			
				| 
					65-315 | 
				
					 
						12.5 
				 | 
				
					 
						32 
				 | 
				
					 
						4 
				 | 
				
					 
						1450 
				 | 
			
			
				| 
					65-315A | 
				
					 
						11.7 
				 | 
				
					 
						28 
				 | 
				
					 
						3 
				 | 
				
					 
						1450 
				 | 
			
			
				| 
					65-315B | 
				
					 
						10 
				 | 
				
					 
						21 
				 | 
				
					 
						3 
				 | 
				
					 
						1450 
				 | 
			
			
				| 
					65-125(I) | 
				
					 
						25 
				 | 
				
					 
						5 
				 | 
				
					 
						0.75 
				 | 
				
					 
						1450 
				 | 
			
			
				| 
					65-160(I) | 
				
					 
						25 
				 | 
				
					 
						8 
				 | 
				
					 
						1.5 
				 | 
				
					 
						1450 
				 | 
			
			
				| 
					65-160(I)A | 
				
					 
						22 
				 | 
				
					 
						6 
				 | 
				
					 
						1.1 
				 | 
				
					 
						1450 
				 | 
			
			
				| 
					65-200(I) | 
				
					 
						25 
				 | 
				
					 
						12.5 
				 | 
				
					 
						2.2 
				 | 
				
					 
						1450 
				 | 
			
			
				| 
					65-200(I)A | 
				
					 
						23.3 
				 | 
				
					 
						11 
				 | 
				
					 
						1.5 
				 | 
				
					 
						1450 
				 | 
			
			
				| 
					65-250(I) | 
				
					 
						25 
				 | 
				
					 
						20 
				 | 
				
					 
						3 
				 | 
				
					 
						1450 
				 | 
			
			
				| 
					65-250(I)A | 
				
					 
						22.2 
				 | 
				
					 
						15.8 
				 | 
				
					 
						2.2 
				 | 
				
					 
						1450 
				 | 
			
			
				| 
					65-250(I)B | 
				
					 
						20 
				 | 
				
					 
						12.8 
				 | 
				
					 
						1.54 
				 | 
				
					 
						1450 
				 | 
			
			
				| 
					65-315(I) | 
				
					 
						25 
				 | 
				
					 
						32 
				 | 
				
					 
						5.5 
				 | 
				
					 
						1450 
				 | 
			
			
				| 
					65-315(I)A | 
				
					 
						22.5 
				 | 
				
					 
						26 
				 | 
				
					 
						4 
				 | 
				
					 
						1450 
				 | 
			
			
				| 
					65-315(I)B | 
				
					 
						20 
				 | 
				
					 
						21 
				 | 
				
					 
						3 
				 | 
				
					 
						1450 
				 | 
			
			
				| 
					80-125 | 
				
					 
						25 
				 | 
				
					 
						5 
				 | 
				
					 
						0.75 
				 | 
				
					 
						1450 
				 | 
			
			
				| 
					80-160 | 
				
					 
						25 
				 | 
				
					 
						8 
				 | 
				
					 
						1.5 
				 | 
				
					 
						1450 
				 | 
			
			
				| 
					80-160A | 
				
					 
						22 
				 | 
				
					 
						6 
				 | 
				
					 
						1.1 
				 | 
				
					 
						1450 
				 | 
			
			
				| 
					80-200 | 
				
					 
						25 
				 | 
				
					 
						12.5 
				 | 
				
					 
						2.2 
				 | 
				
					 
						1450 
				 | 
			
			
				| 
					80-200A | 
				
					 
						23.3 
				 | 
				
					 
						11 
				 | 
				
					 
						1.5 
				 | 
				
					 
						1450 
				 | 
			
			
				| 
					80-250 | 
				
					 
						25 
				 | 
				
					 
						20 
				 | 
				
					 
						3 
				 | 
				
					 
						1450 
				 | 
			
			
				| 
					 
						80-250A 
				 | 
				
					 
						22.2 
				 | 
				
					 
						15.8 
				 | 
				
					 
						2.2 
				 | 
				
					 
						1450 
				 | 
			
			
				| 
					 
						80-250B 
				 | 
				
					 
						20 
				 | 
				
					 
						12.8 
				 | 
				
					 
						1.5 
				 | 
				
					 
						1450 
				 | 
			
			
				| 
					 
						80-315 
				 | 
				
					 
						25 
				 | 
				
					 
						32 
				 | 
				
					 
						5.5 
				 | 
				
					 
						1450 
				 | 
			
			
				| 
					 
						80-315A 
				 | 
				
					 
						22.5 
				 | 
				
					 
						26 
				 | 
				
					 
						4 
				 | 
				
					 
						1450 
				 | 
			
			
				| 
					 
						80-315B 
				 | 
				
					 
						20 
				 | 
				
					 
						21 
				 | 
				
					 
						3 
				 | 
				
					 
						1450 
				 | 
			
			
				| 
					 
						80-125(I) 
				 | 
				
					 
						50 
				 | 
				
					 
						5 
				 | 
				
					 
						1.5 
				 | 
				
					 
						1450 
				 | 
			
			
				| 
					 
						80-160(I) 
				 | 
				
					 
						50 
				 | 
				
					 
						8 
				 | 
				
					 
						2.2 
				 | 
				
					 
						1450 
				 | 
			
			
				| 
					 
						80-160(I)A 
				 | 
				
					 
						44.7 
				 | 
				
					 
						6 
				 | 
				
					 
						1.5 
				 | 
				
					 
						1450 
				 | 
			
			
				| 
					80-160(I)B | 
				
					 
						43.2 
				 | 
				
					 
						5.8 
				 | 
				
					 
						1.5 
				 | 
				
					 
						1450 
				 | 
			
			
				| 
					80-200(I) | 
				
					 
						50 
				 | 
				
					 
						12.5 
				 | 
				
					 
						4 
				 | 
				
					 
						1450 
				 | 
			
			
				| 
					80-200(I)A | 
				
					 
						44.7 
				 | 
				
					 
						10 
				 | 
				
					 
						3 
				 | 
				
					 
						1450 
				 | 
			
			
				| 
					80-250(I) | 
				
					 
						50 
				 | 
				
					 
						20 
				 | 
				
					 
						5.5 
				 | 
				
					 
						1450 
				 | 
			
			
				| 
					80-250(I)A | 
				
					 
						46 
				 | 
				
					 
						17 
				 | 
				
					 
						4 
				 | 
				
					 
						1450 
				 | 
			
			
				| 
					80-250(I)B | 
				
					 
						40.5 
				 | 
				
					 
						13 
				 | 
				
					 
						3 
				 | 
				
					 
						1450 
				 | 
			
			
				| 
					80-315(I) | 
				
					 
						50 
				 | 
				
					 
						32 
				 | 
				
					 
						11 
				 | 
				
					 
						1450 
				 | 
			
			
				| 
					80-315(I)A | 
				
					 
						46 
				 | 
				
					 
						27.9 
				 | 
				
					 
						7.5 
				 | 
				
					 
						1450 
				 | 
			
			
				| 
					80-315(I)B | 
				
					 
						40.5 
				 | 
				
					 
						21 
				 | 
				
					 
						5.5 
				 | 
				
					 
						1450 
				 | 
			
			
				| 
					100-125 | 
				
					 
						50 
				 | 
				
					 
						5 
				 | 
				
					 
						1.5 
				 | 
				
					 
						1450 
				 | 
			
			
				| 
					100-160 | 
				
					 
						50 
				 | 
				
					 
						8 
				 | 
				
					 
						2.2 
				 | 
				
					 
						1450 
				 | 
			
			
				| 
					100-160A | 
				
					 
						46 
				 | 
				
					 
						6 
				 | 
				
					 
						1.5 
				 | 
				
					 
						1450 
				 | 
			
			
				| 
					100-200 | 
				
					 
						50 
				 | 
				
					 
						12.5 
				 | 
				
					 
						4 
				 | 
				
					 
						1450 
				 | 
			
			
				| 
					100-200A | 
				
					 
						44.7 
				 | 
				
					 
						10 
				 | 
				
					 
						3 
				 | 
				
					 
						1450 
				 | 
			
			
				| 
					100-250 | 
				
					 
						50 
				 | 
				
					 
						20 
				 | 
				
					 
						5.5 
				 | 
				
					 
						1450 
				 | 
			
			
				| 
					100-250A | 
				
					 
						46 
				 | 
				
					 
						17 
				 | 
				
					 
						4 
				 | 
				
					 
						1450 
				 | 
			
			
				| 
					100-250B | 
				
					 
						40.5 
				 | 
				
					 
						13 
				 | 
				
					 
						3 
				 | 
				
					 
						1450 
				 | 
			
			
				| 
					100-315 | 
				
					 
						50 
				 | 
				
					 
						32 
				 | 
				
					 
						11 
				 | 
				
					 
						1450 
				 | 
			
			
				| 
					100-315A | 
				
					 
						46 
				 | 
				
					 
						27.9 
				 | 
				
					 
						7.5 
				 | 
				
					 
						1450 
				 | 
			
			
				| 
					100-315B | 
				
					 
						40.5 
				 | 
				
					 
						21 
				 | 
				
					 
						5.5 
				 | 
				
					 
						1450 
				 | 
			
			
				| 
					100-125(I) | 
				
					 
						80 
				 | 
				
					 
						5 
				 | 
				
					 
						2.2 
				 | 
				
					 
						1450 
				 | 
			
			
				| 
					100-160(I) | 
				
					 
						80 
				 | 
				
					 
						8 
				 | 
				
					 
						3 
				 | 
				
					 
						1450 
				 | 
			
			
				| 
					100-160(I)A | 
				
					 
						72 
				 | 
				
					 
						6.5 
				 | 
				
					 
						2.2 
				 | 
				
					 
						1450 
				 | 
			
			
				| 
					100-200(I) | 
				
					 
						80 
				 | 
				
					 
						12.5 
				 | 
				
					 
						5.5 
				 | 
				
					 
						1450 
				 | 
			
			
				| 
					100-200(I)A | 
				
					 
						72 
				 | 
				
					 
						10 
				 | 
				
					 
						4 
				 | 
				
					 
						1450 
				 | 
			
			
				| 
					100-250(I) | 
				
					 
						80 
				 | 
				
					 
						20 
				 | 
				
					 
						11 
				 | 
				
					 
						1450 
				 | 
			
			
				| 
					100-250(I)A | 
				
					 
						75 
				 | 
				
					 
						17.5 
				 | 
				
					 
						7.5 
				 | 
				
					 
						1450 
				 | 
			
			
				| 
					100-250(I)B | 
				
					 
						69 
				 | 
				
					 
						15 
				 | 
				
					 
						5.5 
				 | 
				
					 
						1450 
				 | 
			
			
				| 
					100-315(I) | 
				
					 
						80 
				 | 
				
					 
						32 
				 | 
				
					 
						15 
				 | 
				
					 
						1450 
				 | 
			
			
				| 
					100-315(I)A | 
				
					 
						75 
				 | 
				
					 
						27.5 
				 | 
				
					 
						11 
				 | 
				
					 
						1450 
				 | 
			
			
				| 
					100-315(I)B | 
				
					 
						70 
				 | 
				
					 
						24 
				 | 
				
					 
						11 
				 | 
				
					 
						1450 
				 | 
			
			
				| 
					100-400(I) | 
				
					 
						80 
				 | 
				
					 
						50 
				 | 
				
					 
						22 
				 | 
				
					 
						1450 
				 | 
			
			
				| 
					100-400(I)A | 
				
					 
						75 
				 | 
				
					 
						44 
				 | 
				
					 
						18.5 
				 | 
				
					 
						1450 
				 | 
			
			
				| 
					100-400(I)B | 
				
					 
						70 
				 | 
				
					 
						38 
				 | 
				
					 
						15 
				 | 
				
					 
						1450 
				 | 
			
			
				| 
					125-125 | 
				
					 
						100 
				 | 
				
					 
						5 
				 | 
				
					 
						2.2 
				 | 
				
					 
						1450 
				 | 
			
			
				| 
					125-160 | 
				
					 
						100 
				 | 
				
					 
						8 
				 | 
				
					 
						4 
				 | 
				
					 
						1450 
				 | 
			
			
				| 
					125-160A | 
				
					 
						87 
				 | 
				
					 
						6 
				 | 
				
					 
						4 
				 | 
				
					 
						1450 
				 | 
			
			
				| 
					125-200 | 
				
					 
						100 
				 | 
				
					 
						12.5 
				 | 
				
					 
						7.5 
				 | 
				
					 
						1450 
				 | 
			
			
				| 
					125-200A | 
				
					 
						89 
				 | 
				
					 
						10 
				 | 
				
					 
						5.5 
				 | 
				
					 
						1450 
				 | 
			
			
				| 
					125-250 | 
				
					 
						100 
				 | 
				
					 
						220 
				 | 
				
					 
						11 
				 | 
				
					 
						1450 
				 | 
			
			
				| 
					125-250A | 
				
					 
						93.5 
				 | 
				
					 
						17.5 
				 | 
				
					 
						7.5 
				 | 
				
					 
						1450 
				 | 
			
			
				| 
					125-250B | 
				
					 
						87 
				 | 
				
					 
						15 
				 | 
				
					 
						7.5 
				 | 
				
					 
						1450 
				 | 
			
			
				| 
					125-315 | 
				
					 
						100 
				 | 
				
					 
						32 
				 | 
				
					 
						15 
				 | 
				
					 
						1450 
				 | 
			
			
				| 
					125-315A | 
				
					 
						91 
				 | 
				
					 
						27 
				 | 
				
					 
						11 
				 | 
				
					 
						1450 
				 | 
			
			
				| 
					125-315B | 
				
					 
						87 
				 | 
				
					 
						24 
				 | 
				
					 
						11 
				 | 
				
					 
						1450 
				 | 
			
			
				| 
					125-400 | 
				
					 
						100 
				 | 
				
					 
						50 
				 | 
				
					 
						30 
				 | 
				
					 
						1450 
				 | 
			
			
				| 
					125-400A | 
				
					 
						94 
				 | 
				
					 
						44 
				 | 
				
					 
						22 
				 | 
				
					 
						1450 
				 | 
			
			
				| 
					125-400B | 
				
					 
						87 
				 | 
				
					 
						37.5 
				 | 
				
					 
						18.5 
				 | 
				
					 
						1450 
				 | 
			
			
				| 
					125-200(I) | 
				
					 
						160 
				 | 
				
					 
						12.5 
				 | 
				
					 
						11 
				 | 
				
					 
						1450 
				 | 
			
			
				| 
					125-200(I)A | 
				
					 
						143 
				 | 
				
					 
						10 
				 | 
				
					 
						7.5 
				 | 
				
					 
						1450 
				 | 
			
			
				| 
					125-250(I) | 
				
					 
						160 
				 | 
				
					 
						20 
				 | 
				
					 
						15 
				 | 
				
					 
						1450 
				 | 
			
			
				| 
					125-250(I)A | 
				
					 
						147 
				 | 
				
					 
						17 
				 | 
				
					 
						11 
				 | 
				
					 
						1450 
				 | 
			
			
				| 
					125-250(I)B | 
				
					 
						134 
				 | 
				
					 
						14 
				 | 
				
					 
						7.5 
				 | 
				
					 
						1450 
				 | 
			
			
				| 
					125-315(I) | 
				
					 
						160 
				 | 
				
					 
						32 
				 | 
				
					 
						22 
				 | 
				
					 
						1450 
				 | 
			
			
				| 
					125-315(I)A | 
				
					 
						150 
				 | 
				
					 
						28 
				 | 
				
					 
						18.5 
				 | 
				
					 
						1450 
				 | 
			
			
				| 
					125-315(I)B | 
				
					 
						138 
				 | 
				
					 
						24 
				 | 
				
					 
						15 
				 | 
				
					 
						1450 
				 | 
			
			
				| 
					125-400(I) | 
				
					 
						160 
				 | 
				
					 
						50 
				 | 
				
					 
						37 
				 | 
				
					 
						1450 
				 | 
			
			
				| 
					125-400(I)A | 
				
					 
						150 
				 | 
				
					 
						44 
				 | 
				
					 
						30 
				 | 
				
					 
						1450 
				 | 
			
			
				| 
					125-400(I)B | 
				
					 
						138 
				 | 
				
					 
						38 
				 | 
				
					 
						30 
				 | 
				
					 
						1450 
				 | 
			
			
				| 
					150-200 | 
				
					 
						160 
				 | 
				
					 
						12.5 
				 | 
				
					 
						11 
				 | 
				
					 
						1450 
				 | 
			
			
				| 
					150-200A | 
				
					 
						143 
				 | 
				
					 
						10 
				 | 
				
					 
						7.5 
				 | 
				
					 
						1450 
				 | 
			
			
				| 
					150-250 | 
				
					 
						160 
				 | 
				
					 
						20 
				 | 
				
					 
						15 
				 | 
				
					 
						1450 
				 | 
			
			
				| 
					150-250A | 
				
					 
						147 
				 | 
				
					 
						17 
				 | 
				
					 
						11 
				 | 
				
					 
						1450 
				 | 
			
			
				| 
					150-250B | 
				
					 
						134 
				 | 
				
					 
						14 
				 | 
				
					 
						7.5 
				 | 
				
					 
						1450 
				 | 
			
			
				| 
					150-315 | 
				
					 
						160 
				 | 
				
					 
						32 
				 | 
				
					 
						22 
				 | 
				
					 
						1450 
				 | 
			
			
				| 
					150-315A | 
				
					 
						150 
				 | 
				
					 
						28 
				 | 
				
					 
						18.5 
				 | 
				
					 
						1450 
				 | 
			
			
				| 
					150-315B | 
				
					 
						138 
				 | 
				
					 
						24 
				 | 
				
					 
						15 
				 | 
				
					 
						1450 
				 | 
			
			
				| 
					150-400 | 
				
					 
						160 
				 | 
				
					 
						50 
				 | 
				
					 
						37 
				 | 
				
					 
						1450 
				 | 
			
			
				| 
					150-400A | 
				
					 
						150 
				 | 
				
					 
						44 
				 | 
				
					 
						30 
				 | 
				
					 
						1450 
				 | 
			
			
				| 
					150-400B | 
				
					 
						138 
				 | 
				
					 
						38 
				 | 
				
					 
						30 
				 | 
				
					 
						1450 
				 | 
			
			
				| 
					150-200(I) | 
				
					 
						200 
				 | 
				
					 
						12.5 
				 | 
				
					 
						15 
				 | 
				
					 
						1450 
				 | 
			
			
				| 
					150-200(I)A | 
				
					 
						179 
				 | 
				
					 
						10 
				 | 
				
					 
						11 
				 | 
				
					 
						1450 
				 | 
			
			
				| 
					150-250(I) | 
				
					 
						200 
				 | 
				
					 
						20 
				 | 
				
					 
						18.5 
				 | 
				
					 
						1450 
				 | 
			
			
				| 
					150-250(I)A | 
				
					 
						187 
				 | 
				
					 
						17.5 
				 | 
				
					 
						15 
				 | 
				
					 
						1450 
				 | 
			
			
				| 
					150-250(I)B | 
				
					 
						173 
				 | 
				
					 
						14 
				 | 
				
					 
						11 
				 | 
				
					 
						1450 
				 | 
			
			
				| 
					150-315(I) | 
				
					 
						200 
				 | 
				
					 
						32 
				 | 
				
					 
						30 
				 | 
				
					 
						1450 
				 | 
			
			
				| 
					150-315(I)A | 
				
					 
						187 
				 | 
				
					 
						28 
				 | 
				
					 
						22 
				 | 
				
					 
						1450 
				 | 
			
			
				| 
					150-315(I)B | 
				
					 
						173 
				 | 
				
					 
						24 
				 | 
				
					 
						18.5 
				 | 
				
					 
						1450 
				 | 
			
			
				| 
					150-400(I) | 
				
					 
						200 
				 | 
				
					 
						50 
				 | 
				
					 
						45 
				 | 
				
					 
						1450 
				 | 
			
			
				| 
					150-400(I)A | 
				
					 
						187 
				 | 
				
					 
						44 
				 | 
				
					 
						37 
				 | 
				
					 
						1450 
				 | 
			
			
				| 
					150-400(I)B | 
				
					 
						173 
				 | 
				
					 
						37.5 
				 | 
				
					 
						30 
				 | 
				
					 
						1450 
				 | 
			
			
				| 
					200-200 | 
				
					 
						200 
				 | 
				
					 
						12.5 
				 | 
				
					 
						15 
				 | 
				
					 
						1450 
				 | 
			
			
				| 
					200-200A | 
				
					 
						179 
				 | 
				
					 
						10 
				 | 
				
					 
						11 
				 | 
				
					 
						1450 
				 | 
			
			
				| 
					200-250 | 
				
					 
						200 
				 | 
				
					 
						20 
				 | 
				
					 
						18.5 
				 | 
				
					 
						1450 
				 | 
			
			
				| 
					200-250A | 
				
					 
						187 
				 | 
				
					 
						17.5 
				 | 
				
					 
						15 
				 | 
				
					 
						1450 
				 | 
			
			
				| 
					200-250B | 
				
					 
						173 
				 | 
				
					 
						14 
				 | 
				
					 
						11 
				 | 
				
					 
						1450 
				 | 
			
			
				| 
					200-315 | 
				
					 
						200 
				 | 
				
					 
						32 
				 | 
				
					 
						30 
				 | 
				
					 
						1450 
				 | 
			
			
				| 
					200-315A | 
				
					 
						187 
				 | 
				
					 
						28 
				 | 
				
					 
						22 
				 | 
				
					 
						1450 
				 | 
			
			
				| 
					200-315B | 
				
					 
						173 
				 | 
				
					 
						24 
				 | 
				
					 
						18.5 
				 | 
				
					 
						1450 
				 | 
			
			
				| 
					200-400 | 
				
					 
						200 
				 | 
				
					 
						50 
				 | 
				
					 
						45 
				 | 
				
					 
						1450 
				 | 
			
			
				| 
					200-400A | 
				
					 
						187 
				 | 
				
					 
						44 
				 | 
				
					 
						37 
				 | 
				
					 
						1450 
				 | 
			
			
				| 
					200-400B | 
				
					 
						173 
				 | 
				
					 
						37.5 
				 | 
				
					 
						30 
				 | 
				
					 
						1450 
				 | 
			
			
				| 
					200-200(I) | 
				
					 
						400 
				 | 
				
					 
						12.5 
				 | 
				
					 
						22 
				 | 
				
					 
						1450 
				 | 
			
			
				| 
					200-200(I)A | 
				
					 
						358 
				 | 
				
					 
						10 
				 | 
				
					 
						18.5 
				 | 
				
					 
						1450 
				 | 
			
			
				| 
					200-250(I) | 
				
					 
						400 
				 | 
				
					 
						20 
				 | 
				
					 
						30 
				 | 
				
					 
						1450 
				 | 
			
			
				| 
					200-250(I)A | 
				
					 
						358 
				 | 
				
					 
						16 
				 | 
				
					 
						22 
				 | 
				
					 
						1450 
				 | 
			
			
				| 
					200-250(I)B | 
				
					 
						322 
				 | 
				
					 
						13 
				 | 
				
					 
						18.5 
				 | 
				
					 
						1450 
				 | 
			
			
				| 
					200-315(I) | 
				
					 
						400 
				 | 
				
					 
						32 
				 | 
				
					 
						55 
				 | 
				
					 
						1450 
				 | 
			
			
				| 
					200-315(I)A | 
				
					 
						374 
				 | 
				
					 
						28 
				 | 
				
					 
						45 
				 | 
				
					 
						1450 
				 | 
			
			
				| 
					200-315(I)B | 
				
					 
						346 
				 | 
				
					 
						24 
				 | 
				
					 
						37 
				 | 
				
					 
						1450 
				 | 
			
			
				| 
					200-400(I) | 
				
					 
						400 
				 | 
				
					 
						50 
				 | 
				
					 
						90 
				 | 
				
					 
						1450 
				 | 
			
			
				| 
					200-400(I)A | 
				
					 
						374 
				 | 
				
					 
						44 
				 | 
				
					 
						75 
				 | 
				
					 
						1450 
				 | 
			
			
				| 
					200-400(I)B | 
				
					 
						347 
				 | 
				
					 
						38 
				 | 
				
					 
						55 
				 | 
				
					 
						1450 
				 | 
			
			
				| 
					200-400(I)C | 
				
					 
						320 
				 | 
				
					 
						32 
				 | 
				
					 
						45 
				 | 
				
					 
						1450 
				 | 
			
			
				| 
					250-250 | 
				
					 
						550 
				 | 
				
					 
						20 
				 | 
				
					 
						45 
				 | 
				
					 
						1450 
				 | 
			
			
				| 
					250-250A | 
				
					 
						490 
				 | 
				
					 
						16 
				 | 
				
					 
						37 
				 | 
				
					 
						1450 
				 | 
			
			
				| 
					250-315 | 
				
					 
						550 
				 | 
				
					 
						32 
				 | 
				
					 
						75 
				 | 
				
					 
						1450 
				 | 
			
			
				| 
					250-315A | 
				
					 
						515 
				 | 
				
					 
						28 
				 | 
				
					 
						55 
				 | 
				
					 
						1450 
				 | 
			
			
				| 
					250-315B | 
				
					 
						476 
				 | 
				
					 
						24 
				 | 
				
					 
						45 
				 | 
				
					 
						1450 
				 | 
			
			
				| 
					250-400 | 
				
					 
						550 
				 | 
				
					 
						50 
				 | 
				
					 
						110 
				 | 
				
					 
						1450 
				 | 
			
			
				| 
					250-400A | 
				
					 
						515 
				 | 
				
					 
						44 
				 | 
				
					 
						90 
				 | 
				
					 
						1450 
				 | 
			
			
				| 
					250-400B | 
				
					 
						476 
				 | 
				
					 
						37.5 
				 | 
				
					 
						75 
				 | 
				
					 
						1450 
				 | 
			
			
				| 
					300-400 | 
				
					 
						720 
				 | 
				
					 
						50 
				 | 
				
					 
						132 
				 | 
				
					 
						1450 
				 | 
			
			
				| 
					300-400A | 
				
					 
						662 
				 | 
				
					 
						44 
				 | 
				
					 
						110 
				 | 
				
					 
						1450 
				 | 
			
			
				| 
					300-400B | 
				
					 
						609 
				 | 
				
					 
						38 
				 | 
				
					 
						90 
				 | 
				
					 
						1450 
				 | 
			
			
				| 
					300-400C | 
				
					 
						561 
				 | 
				
					 
						33 
				 | 
				
					 
						75 
				 | 
				
					 
						1450 
				 | 
			
			
				| 
					300-460 | 
				
					 
						720 
				 | 
				
					 
						65 
				 | 
				
					 
						200 
				 | 
				
					 
						1450 
				 | 
			
			
				| 
					300-460A | 
				
					 
						662 
				 | 
				
					 
						55 
				 | 
				
					 
						160 
				 | 
				
					 
						1450 
				 | 
			
			
				| 
					300-460B | 
				
					 
						609 
				 | 
				
					 
						45 
				 | 
				
					 
						110 
				 | 
				
					 
						1450 
				 | 
			
			
				| 
					300-460C | 
				
					 
						561 
				 | 
				
					 
						38 
				 | 
				
					 
						90 
				 | 
				
					 
						1450 
				 | 
			
			
				| 
					300-510 | 
				
					 
						720 
				 | 
				
					 
						80 
				 | 
				
					 
						250 
				 | 
				
					 
						1450 
				 | 
			
			
				| 
					300-510A | 
				
					 
						662 
				 | 
				
					 
						70.5 
				 | 
				
					 
						200 
				 | 
				
					 
						1450 
				 | 
			
			
				| 
					300-510B | 
				
					 
						609 
				 | 
				
					 
						62 
				 | 
				
					 
						160 
				 | 
				
					 
						1450 
				 | 
			
			
				| 
					300-510C | 
				
					 
						561 
				 | 
				
					 
						54.5 
				 | 
				
					 
						132 
				 | 
				
					 
						1450 
				 | 
			
			
				| 
					300-235 | 
				
					 
						720 
				 | 
				
					 
						18 
				 | 
				
					 
						55 
				 | 
				
					 
						970 
				 | 
			
			
				| 
					300-235A | 
				
					 
						657 
				 | 
				
					 
						15 
				 | 
				
					 
						45 
				 | 
				
					 
						970 
				 | 
			
			
				| 
					300-300 | 
				
					 
						720 
				 | 
				
					 
						28 
				 | 
				
					 
						75 
				 | 
				
					 
						970 
				 | 
			
			
				| 
					300-300A | 
				
					 
						666 
				 | 
				
					 
						24 
				 | 
				
					 
						75 
				 | 
				
					 
						970 
				 | 
			
			
				| 
					300-300B | 
				
					 
						623 
				 | 
				
					 
						21 
				 | 
				
					 
						55 
				 | 
				
					 
						970 
				 | 
			
			
				| 
					300-380 | 
				
					 
						720 
				 | 
				
					 
						44 
				 | 
				
					 
						132 
				 | 
				
					 
						970 
				 | 
			
			
				| 
					300-380A | 
				
					 
						666 
				 | 
				
					 
						38 
				 | 
				
					 
						110 
				 | 
				
					 
						970 
				 | 
			
			
				| 
					300-380B | 
				
					 
						623 
				 | 
				
					 
						33 
				 | 
				
					 
						90 
				 | 
				
					 
						970 
				 | 
			
			
				| 
					350-250 | 
				
					 
						800 
				 | 
				
					 
						20 
				 | 
				
					 
						75 
				 | 
				
					 
						970 
				 | 
			
			
				| 
					350-250A | 
				
					 
						715 
				 | 
				
					 
						16 
				 | 
				
					 
						55 
				 | 
				
					 
						970 
				 | 
			
			
				| 
					350-315 | 
				
					 
						800 
				 | 
				
					 
						32 
				 | 
				
					 
						90 
				 | 
				
					 
						970 
				 | 
			
			
				| 
					350-315A | 
				
					 
						748 
				 | 
				
					 
						28 
				 | 
				
					 
						75 
				 | 
				
					 
						970 
				 | 
			
			
				| 
					350-315B | 
				
					 
						692 
				 | 
				
					 
						24 
				 | 
				
					 
						75 
				 | 
				
					 
						970 
				 | 
			
			
				| 
					350-400 | 
				
					 
						800 
				 | 
				
					 
						50 
				 | 
				
					 
						160 
				 | 
				
					 
						970 
				 | 
			
			
				| 
					350-400A | 
				
					 
						750 
				 | 
				
					 
						44 
				 | 
				
					 
						132 
				 | 
				
					 
						970 
				 | 
			
			
				| 
					350-400B | 
				
					 
						697 
				 | 
				
					 
						38 
				 | 
				
					 
						110 
				 | 
				
					 
						970 
				 | 
			
			
				| 
					400-400 | 
				
					 
						1080 
				 | 
				
					 
						12.5 
				 | 
				
					 
						55 
				 | 
				
					 
						970 
				 | 
			
			
				| 
					400-400A | 
				
					 
						966 
				 | 
				
					 
						10 
				 | 
				
					 
						45 
				 | 
				
					 
						970 
				 | 
			
			
				| 
					400-500 | 
				
					 
						1080 
				 | 
				
					 
						20 
				 | 
				
					 
						90 
				 | 
				
					 
						970 
				 | 
			
			
				| 
					400-500A | 
				
					 
						966 
				 | 
				
					 
						17 
				 | 
				
					 
						75 
				 | 
				
					 
						970 
				 | 
			
			
				| 
					400-500B | 
				
					 
						935 
				 | 
				
					 
						15 
				 | 
				
					 
						55 
				 | 
				
					 
						970 
				 | 
			
			
				| 
					400-625 | 
				
					 
						1080 
				 | 
				
					 
						32 
				 | 
				
					 
						132 
				 | 
				
					 
						970 
				 | 
			
			
				| 
					400-625A | 
				
					 
						996 
				 | 
				
					 
						27 
				 | 
				
					 
						110 
				 | 
				
					 
						970 
				 | 
			
			
				| 
					400-625B | 
				
					 
						935 
				 | 
				
					 
						24 
				 | 
				
					 
						90 
				 | 
				
					 
						970 
				 | 
			
			
				| 
					500-400 | 
				
					 
						1200 
				 | 
				
					 
						12.5 
				 | 
				
					 
						75 
				 | 
				
					 
						970 
				 | 
			
			
				| 
					500-400A | 
				
					 
						1073 
				 | 
				
					 
						10 
				 | 
				
					 
						55 
				 | 
				
					 
						970 
				 | 
			
			
				| 
					500-500 | 
				
					 
						1200 
				 | 
				
					 
						20 
				 | 
				
					 
						110 
				 | 
				
					 
						970 
				 | 
			
			
				| 
					500-500A | 
				
					 
						1106 
				 | 
				
					 
						17 
				 | 
				
					 
						90 
				 | 
				
					 
						970 
				 | 
			
			
				| 
					500-500B | 
				
					 
						1040 
				 | 
				
					 
						                   15 
				 | 
				
					 
						75 
				 | 
				
					 
						970 
				 | 
			
			
				| 
					500-625 | 
				
					 
						1200 
				 | 
				
					 
						32 
				 | 
				
					 
						160 
				 | 
				
					 
						970 
				 | 
			
			
				| 
					500-625A | 
				
					 
						1106 
				 | 
				
					 
						27 
				 | 
				
					 
						132 
				 | 
				
					 
						970 
				 | 
			
			
				| 
					500-625B | 
				
					 
						1040 
				 | 
				
					 
						24 
				 | 
				
					 
						110 
				 | 
				
					 
						970 
					
						  
				 | 
			
		
	
 
	ISWD臥式管道離心泵(曲線圖譜)
	
	訂貨請盡量提供:
	1.型號2.口徑3.揚程(m)4.流量5.電機功率(KW)6.轉速(R/min)7.材質是否帶附件8.電壓(V)
	 
	
	 感謝您訪問我們永嘉泉達的網站【www.igemy.com】如有任何水泵疑問.您可以致電給我們,電話:0577-66999097、66999098,我們將會盡力為您服務。
	產品推薦:臥式熱水管道離心泵ISWR型 臥式管道離心泵ISWD型 熱水管道泵SGR型  ISG管道離心泵